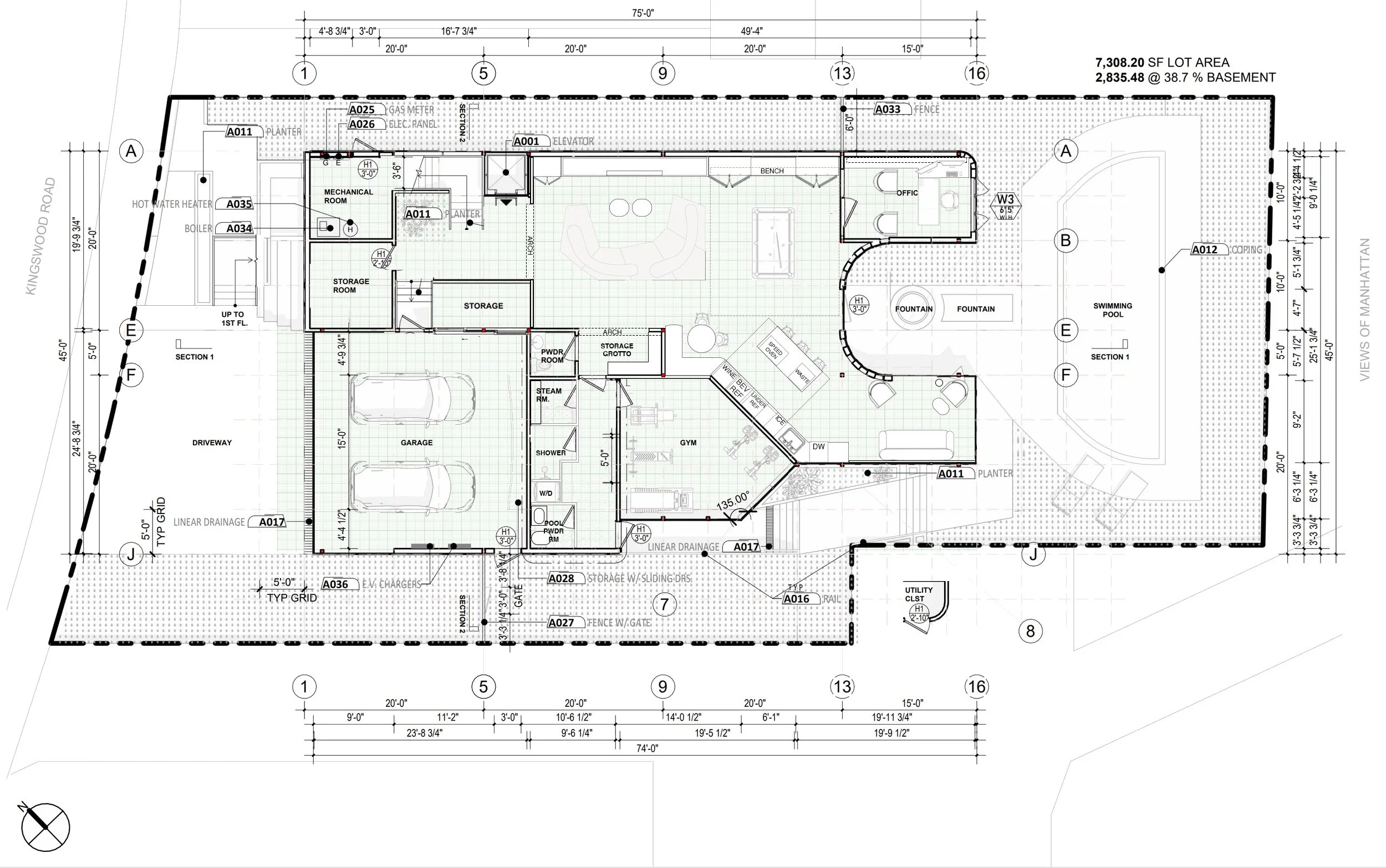
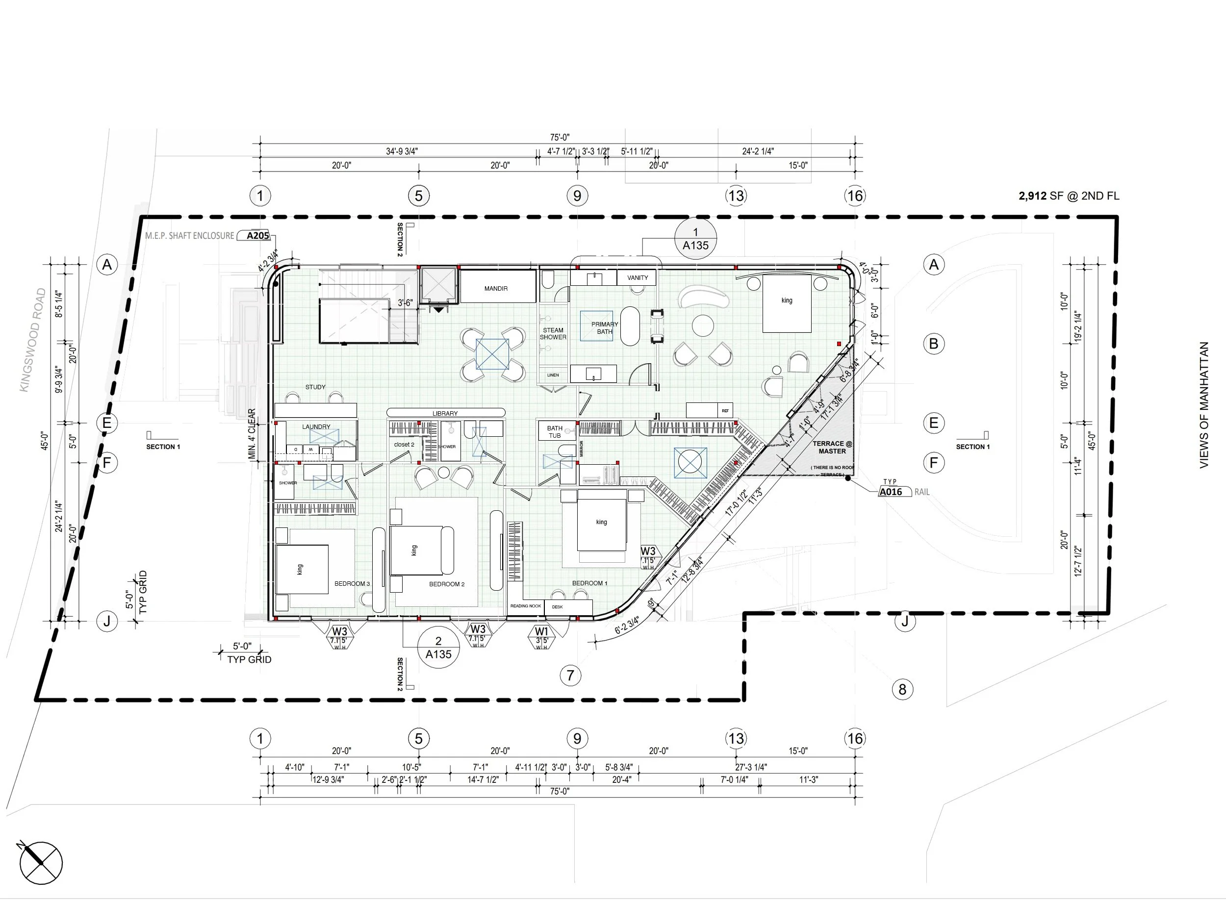
Contract Questionnaire Answers Filing Set Vendors Item List Gantt Chart SF Calculations View fullsize View fullsize View fullsize View fullsize View fullsize View fullsize LEVEL 1 LEVEL 2 LEVEL 3